Casa Tamariu

  • Villas

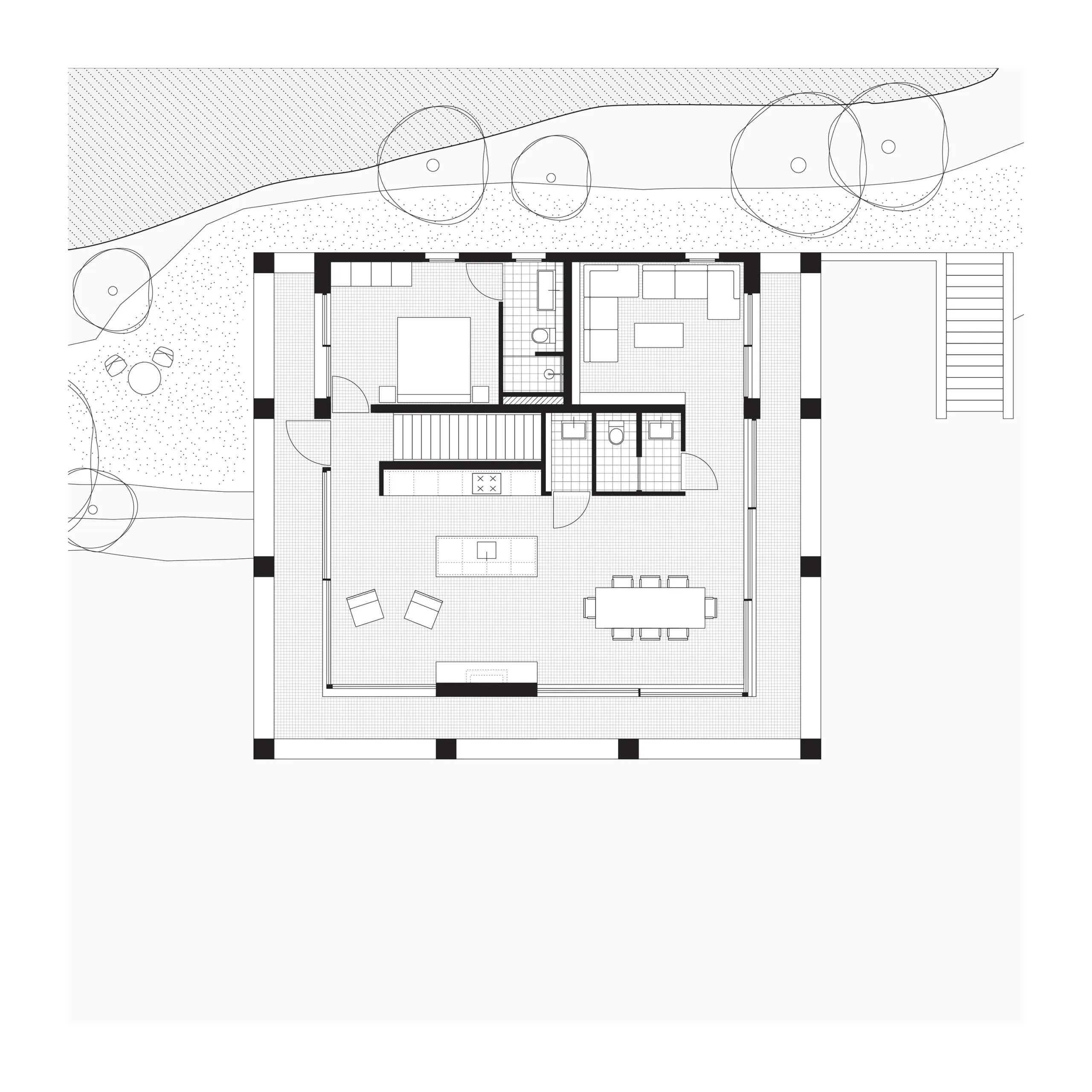
The villa is composed of a simple cube of 11 by 11 meters and two residential floors. On the top floor, an impressive cantilever provides shelter from the burning sun. This floor functions as an all-sided living space: floor-to-ceiling sliding doors all around allow for views on the surrounding landscape. The large horizontal openings in the cantilever frame the landscape like a composed panorama. The cantilever makes vertical sun protection superfluous, guaranteeing generous views and daylight entry.

Large parts of the sliding doors can be opened which adds 1.5 meters to the living space all around. Ceiling and floor finish continue flush into the exterior, causing the transition between indoor and outdoor space to disappear. The staircase central in the floorplan is encapsulated by functional elements such as kitchen and storage. The continuous circulation space around this central core ends with an intimate sitting area again the north façade as logical conclusion. With the addition of a bedroom upstairs this floor is arranged in such a way that a couple only needs to occupy the upper living floor during the winter months.

The ground floor is partly pushed into the mountain and mainly accommodates sleeping rooms and technical spaces. The villa can accommodate as many as 10 people. The staircase leading up to the entrance on the east side of the plot continues from street level to the green back garden of the plot. The staircase cuts through the landscape in a straight line. On the west side however, the landscape gently slopes like a green hillside against the bottom of the cantilever. The main entrance to the villa is not on the front but rather on the east facade, halfway up the stairs so the outdoor sitting area is not crossed when entering the villa. Different types of outdoor spaces are aligned along the villa and separated by subtle height differences. The outdoor spaces are bordered by a planter that acts as a railing and green planter at the same time. The outdoor terrace is complimented by an outdoor kitchen, which is integrated into the facade. Here, too, the continuous circulation space has a logical conclusion: in the lowest part of the terrace, along the south façade, lies a spacious swimming pool for hot summer days.

The villa is placed like a solid monolith in the sloping landscape. The natural colours and materials ensure optimal integration into the Spanish landscape. The basis is formed by a sand-coloured natural stone from a quarry near Ulldecona, some 300 kilometres south on the Spanish coast of Tamariu. The terraces and the facade of the first floor are cladded with natural stone. Equal treatment of all surfaces makes the plinth of the villa appear to be gouged out of the rocky mountains. The facade of the cantilevered floor is entirely finished with a coarse plaster, in the same colour tone as the sand-coloured natural stone. By applying different materials, a subtle transition is created which makes the cantilever seem to float. The light sand colour is complimented by aluminium window frames with a dark bronze hue and elements of dark brown wood.